La proposta del PDR di completamento nasce dalla volontà di portare  a compimento gli interventi previsti per l’area ex Fiat di Novoli nell’originario Piano di Recupero,  con il completamento del disegno urbano già in gran parte realizzato in area Est e rimasto di previsione in area Ovest.

I principali interventi sono i seguenti:

  • Le nuove viabilità articolate con una chiara gerarchia tra ambiente stradale e spazi pubblici e privati.
  • La pista ciclabile inserita lungo la viabilità che costeggia il Parco che ricollega i due assi del quartiere, via di Novoli e viale Guidoni.
  • La piazza verde di quartiere
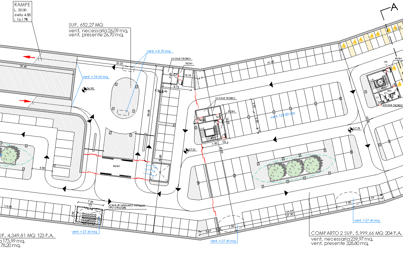
  • Il parcheggio pubblico interrato, per una superficie di 15.900 mq
  • Copyright:
    SINTER srl
    Passaleva Associati
  • Consulenti:
    Illuminotecnico: Arch. M. Iarussi
    Acustica ambientale: Ing. F. Miniati
    Opere viarie: Ing. S. Guidoni
  • Cliente:
    Immobiliare Novoli SpA
  • Dati dimensionali:
    Superficie area: 318.092 mq
    S.U. Terziario: 122.000 mq
    S.U. Residenziale: 78.000 mq
  • Cronologia:
    2010 - 2012
<