Progetto dei“Nuovi Uffizi”- Nuova Sala Botticelli

Museo degli Uffizi - Firenze

2002 - 2013

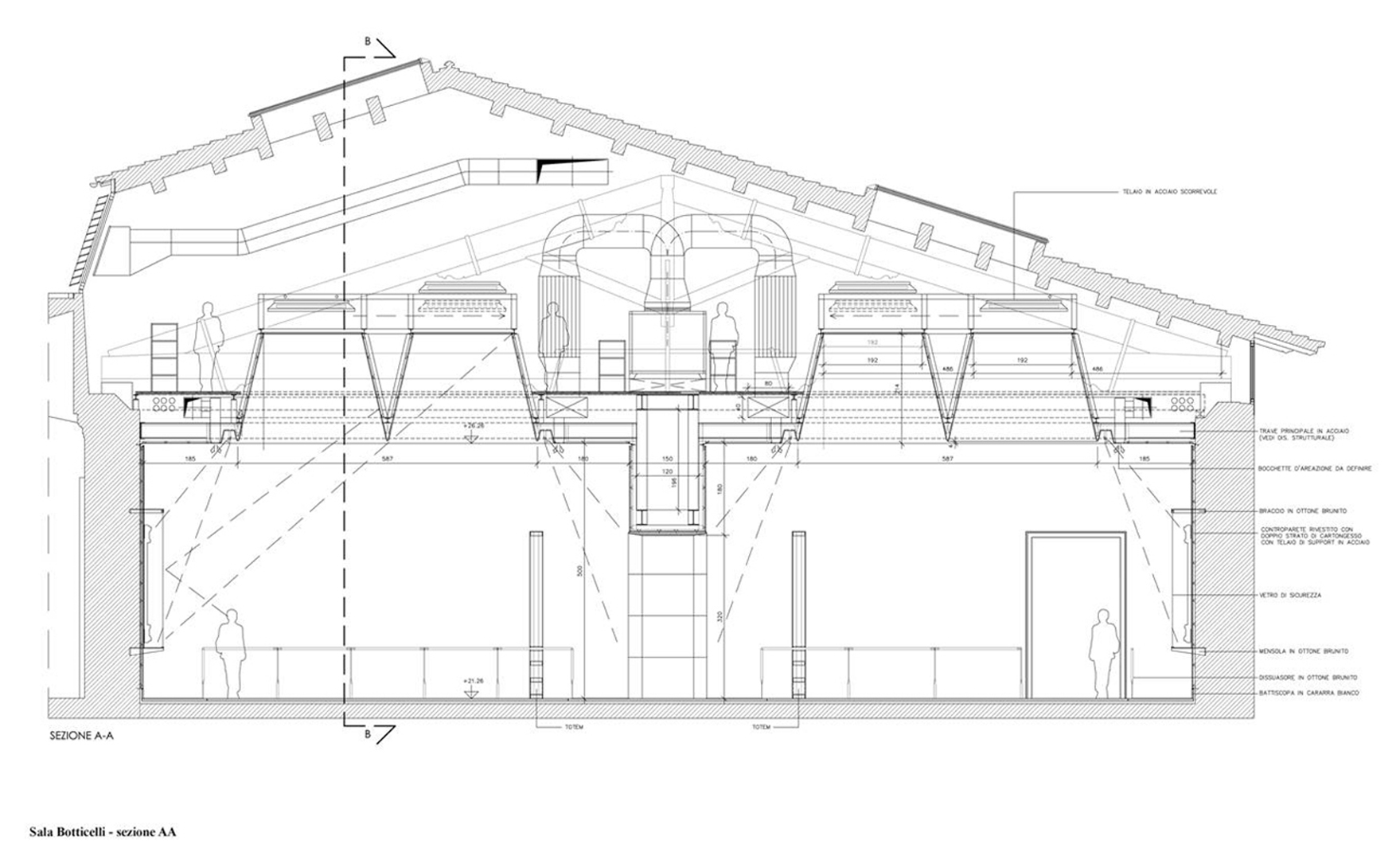
Il progetto prevede il riequilibrio spaziale della sala dividendola in due tramite una parete realizzata con una struttura metallica rivestita in cartongesso, modificando l’altezza degli ambienti con l’inserimento di una controsoffittatura sagomata secondo una forma particolare a “pozzi di luce”.

Ciò consentirà un’ottima illuminazione delle opere esposte. Negli spazi ricavati nel sottotetto saranno collocate tutte le dotazioni impiantistiche, sorrette da una struttura in carpenteria metallica che ha anche la funzione di sostenere la parete divisoria delle sale.

Le pareti verranno rivestite con una doppia lastra di cartongesso e gli ingressi alla sala e il varco centrale saranno rifiniti con portali e soglie in marmo bianco di Carrara in continuità con il pavimento in marmo che sostituirà quello attuale.

  • Stato: In corso d'opera
  • Copyright:
    SINTER s.r.l.
  • Consulenti:
    Architettura: Arch. Adolfo Natalini
    lluminazione: Arch. Massimo Iarussi
    Archeologia: Roberto Francovich
    Impianti: E. Giusti / Beta Progetti
  • Cliente:
    Ministero per i Beni e le Attività Culturali: Direzione Generale per i Beni Architettonici e del Paesaggio
  • Dati dimensionali:
    Sup. Utile: mq 320
  • Cronologia:
    2002-2013 | Progetto In corso di realizzazione
<